«Группа компаний ГЕОН»
это современная российская инжиниринговая компания полного цикла, специализирующаяся на проектировании, производстве и монтаже очистных сооружений сточных вод. Компания успешно реализует проекты по всей России и СНГ, обеспечивая комплексный подход к каждому этапу — от анализа и проектирования до пусконаладки и сервисного обслуживания
Заполните короткий опросный лист и наши специалисты сформируют для вас конкретное коммерческое предложение с фиксированной ценой
Дисковые фильтры бывают разных типов, и каждый вид подбирается в зависимости от задач, объёма загрязнений и условий эксплуатации
По типу очистки:
Грубой очистки
Используются для удаления крупных механических примесей (песок, ил, ржавчина). Устанавливаются на входе в систему водоснабжения или перед чувствительным оборудованием
Тонкой очистки
Имеют более плотную структуру дисков, задерживают мелкие частицы. Применяются как финальный этап перед подачей воды в бытовые или промышленные устройства
По способу промывки
Ручной промывки
Простой и бюджетный вариант. Промывка производится вручную — путём разборки и очистки дисков. Подходит для частного использования или небольших объёмов воды
Автоматической или полуавтоматической промывки
Более удобные и долговечные фильтры, очищаются без разборки, с помощью обратного потока воды. Некоторые модели оснащены блоком управления и работают полностью автономно
По конструктивным особенностям
С фиксированным пакетом дисков
Фильтрующий элемент нельзя заменить, но он рассчитан на многократную промывку и длительную работу
Съёмный картридж с дисками
Быстро заменяется в случае износа. Удобен для бытовых пользователей
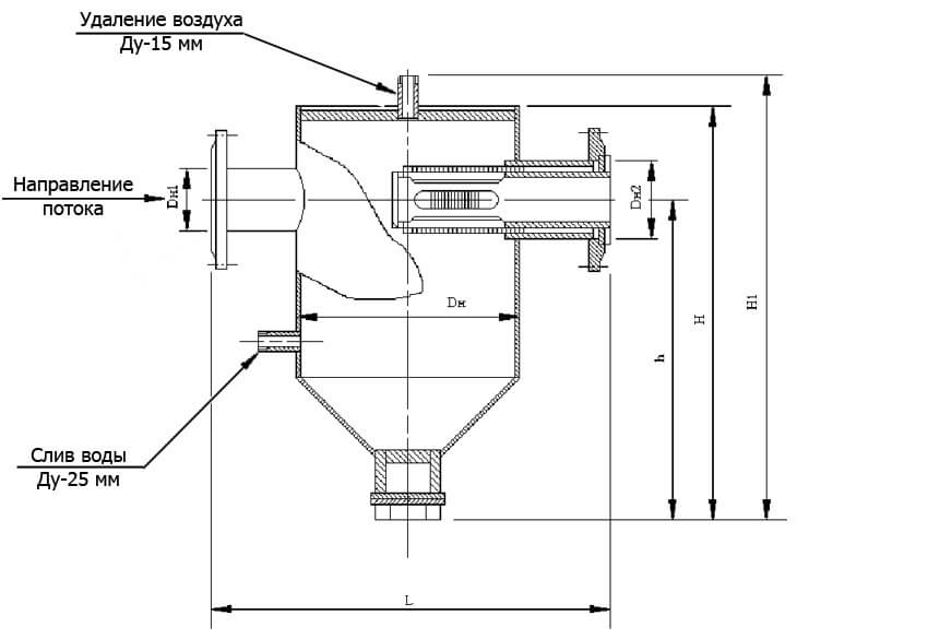
Дисковый фильтр предназначенное для удаления из потока крупных нерастворённых примесей: песка, ила, ржавчины и прочего мусора. Он устанавливается в трубопроводных системах и защищает оборудование от повреждений и засоров
Очистка рабочей среды от механических примесей:
Предотвращение попадания загрязнений в систему:
Защита оборудования от повреждений, вызванных загрязнением:
Поддержание эффективности и надёжности работы системы:
Основная задача дискового фильтра-грязевика
защита инженерных систем и оборудования (насосов, теплообменников, мембран, клапанов и т.д.) от загрязнений. Он обеспечивает стабильную работу и продлевает срок службы всех элементов системы
В отличие от обычных сетчатых или картриджных фильтров, дисковый фильтр-грязевик имеет более высокую удерживающую способность и может использоваться многократно. Он эффективен при высоких объёмах загрязнений, легко поддаётся промывке (в том числе **автоматической**), и требует меньше затрат на замену фильтрующих элементов
Фильтр состоит из:
Прочного корпуса (полимерного или металлического)
Пакета фильтрующих дисков, прижатых в цилиндр
Патрубков для подключения к системе
Узла промывки и клапанов
В некоторых моделях — блока автоматического управления
Вода проходит через пакет дисков, имеющих множество канавок различной формы и глубины. Загрязнения задерживаются в этих канавках, а очищенная вода выходит дальше по системе. Когда фильтр загрязняется, запускается промывка: поток воды меняет направление, и весь мусор удаляется без разбора конструкции
Монтаж осуществляется на магистральный трубопровод (в горизонтальном или вертикальном положении) с учётом направления потока. Фильтр подключается с помощью резьбовых или фланцевых соединений, при необходимости устанавливаются байпасы и обратные клапаны. Для автоматических моделей — дополнительно подключается система управления
Да, но только модели из термостойких материалов (например, полипропиленовые диски выдерживают до +70°C, нержавеющий корпус – до +150°C)
В среднем 5–10 лет при регулярной промывке. Диски можно извлечь и промыть вручную при сильном загрязнении
Обычно нет – промывка работает от давления в системе. Но для очень грязной воды или слабого напора можно установить насос

