Группа компаний «ГЕОН»
это современная российская инжиниринговая компания полного цикла в области очистки и перекачки сточных вод. Мы самостоятельно проектируем, изготавливаем и осуществляем монтаж очистных сооружений, обеспечивая надежность и эффективность на каждом этапе
В каталоге более подробно представлен перечень нашего оборудования, а так же информация о компании
На каждом этапе работы мы предлагаем несколько вариантов решений и обосновываем целесообразность применения
Песконефтеуловители
это специализированные устройства для очистки сточных вод от тяжелых минеральных примесей, песка и нефтепродуктов.Он объединяет функции пескоуловителя и нефтеуловителя, обеспечивая эффективное удаление как твердых частиц, так и маслянистых веществ из воды. Они применяются на промышленных предприятиях, автозаправках, автомойках и других объектах, где сточные воды загрязнены не только осадком, но и углеводородами. Эти устройства предотвращают попадание вредных веществ в природные водоемы, минимизируя экологический ущерб и обеспечивая защиту оборудования от коррозии и загрязнения
Основная задача песконефтеуловителя
предотвращение попадания загрязняющих веществ в системы водоотведения и водоемы, что способствует сохранению экологического баланса и предотвращает засорение трубопроводов. Данное оборудование устанавливается в канализационные сети, ливневые резервуары и другие емкости, обеспечивая эффективную очистку воды
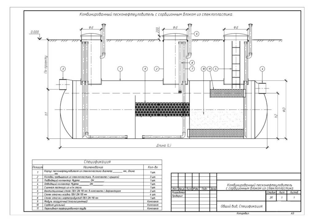
Песконефтеуловитель
играет ключевую роль в системе очистки сточных вод, обеспечивая первичную механическую очистку. Он удаляет крупные частицы и нефтепродукты, что повышает эффективность последующих этапов очистки и снижает нагрузку на оборудование. При проектировании учитываются конструкции устройства, которые могут быть указаны в листе опросных данных
Высокая эффективность и удобство эксплуатации
Песконефтеуловители работают по принципу гравитационного и коалесцентного разделения
Сточные воды поступают в камеру песконефтеуловителя, где скорость потока снижается. В результате тяжелые частицы оседают на дно, а легкие нефтепродукты всплывают на поверхность, где формируются в пленку или собираются специальными устройствами. Очищенная вода отводится из средней части камеры для дальнейшей обработки или сброса. В некоторых случаях система работает под давлением, что позволяет использовать ее в сложных инженерных условиях
Выбор материалов для долговечности и надежности песконефтеуловителя
Песконефтеуловители широко используются:
Промышленных предприятиях
для очистки производственных стоков
Автомойках и автозаправочных станциях
для предотвращения попадания нефтепродуктов в канализацию
Ливневых канализациях
для очистки дождевых стоков перед их сбросом в водоемы
По принципу работы
Гравитационные песконефтеуловители
— Очищают сточные воды за счет естественного осаждения тяжелых частиц (песка, грязи) и всплытия легких нефтепродуктов
— Применяются в ливневых системах и на промышленных предприятиях
— Простая конструкция, не требует сложного обслуживания
Коалесцентные песконефтеуловители
— Используют специальные фильтры или коалесцентные модули, которые способствуют объединению мелких капель нефтепродуктов в более крупные, облегчая их удаление
— Обеспечивают более высокую степень очистки
— Чаще применяются на объектах с высокими требованиями к качеству очистки сточных вод
Напорные песконефтеуловители
— Работают под давлением, что позволяет использовать их в системах с ограниченным пространством или сложной гидравликой
— Обеспечивают быструю и эффективную очистку при высокой скорости потока воды.
По конструкции
Однокамерные песконефтеуловители
— Включают одну камеру, в которой происходит осаждение песка и всплытие нефтепродуктов
— Компактные и простые в эксплуатации, но подходят только для небольших объемов сточных вод
Многокамерные песконефтеуловители
— Имеют несколько секций (например, камеры осаждения, коалесценции и отведения воды)
— Обеспечивают более тщательную очистку и используются на промышленных объектах и крупных ливневых системах
Подземные песконефтеуловители
— Устанавливаются в земле, что экономит пространство на поверхности.
— Используются в ливневых канализациях, на автозаправочных станциях, парковках и промышленных объектах.
Наземные песконефтеуловители
— Размещаются на поверхности, удобны для технического обслуживания.
— Применяются на предприятиях, где есть возможность выделить место для очистного оборудования.
Производительность песконефтеуловителя ГЕОН зависит от модели и предназначения конкретного устройства. Песконефтеуловители этой марки используются для очистки сточных вод, содержащих взвешенные частицы, песок и нефтепродукты, и являются эффективным решением для многих отраслей. В среднем производительность песконефтеуловителей ГЕОН может варьироваться от нескольких кубометров в час (м³/ч) до нескольких десятков кубометров в час, в зависимости от размера установки и объема сточных вод, подлежащих очистке
Для более тщательного подбора вы всегда можете обратиться к нашим специалистам перед этим заполнив небольшую форму
