Не нашли что искали? Заполняйте форму и наши специалисты свяжутся с вами для подбора оптимального решения
«Геон» — российская инжиниринговая компания, специализирующаяся на комплексных решениях в сфере очистки и транспортировки сточных вод. Мы выполняем полный цикл работ: от проектирования и собственного производства до установки и ввода в эксплуатацию очистных сооружений
Наша цель — минимизировать любые риски и исключить ошибки на каждом этапе реализации проекта. Мы берем на себя все вопросы: от подбора оптимального оборудования и получения согласований до строительства и запуска системы, которая действительно работает
Главный приоритет — учесть все пожелания клиента и избавить его от организационных и технических сложностей
Решетки для очистки сточных вод — это специализированные устройства, которые устанавливаются в каналах или на входах в очистные системы для удаления твердых частиц и отходов из поступающего стока. Они представляют собой сито высокой прочности, способное задерживать предметы размером от крупных веток до бытового мусора, предотвращая попадание этих элементов в дальнейшие этапы очистки
Для первичной механической очистки сточных вод на очистных сооружениях применяют различные типы решеток, которые задерживают крупный мусор и предотвращают его попадание в дальнейшие ступени очистки
Основные виды:
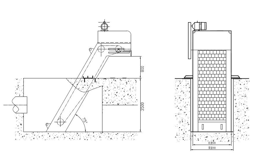
Реечная решетка
Это простейший тип решеток, представляющий собой ряд параллельных стержней (реек), установленных под определенным углом. Используется для грубой очистки и задержания крупных включений (тряпок, веток, пластика). Обслуживание таких решеток может быть ручным или механизированным
Барабанная решетка
Представляет собой вращающийся барабан с прорезями или сеткой. При прохождении сточных вод крупные загрязнения задерживаются на поверхности барабана и удаляются при вращении с помощью щеток или струй воды. Отличается компактностью и автоматизированной работой
Шнековая решетка
Комбинированное устройство, которое совмещает функцию решетки и транспортера. Задержанные отходы автоматически поднимаются вверх с помощью встроенного шнека (винтового конвейера) и выгружаются в контейнер. Это снижает трудозатраты и исключает контакт обслуживающего персонала с отходами
Ленточная решетка
Состоит из подвижной ленты с ячейками, которая перемещается по направляющим. Мусор задерживается на ленте и удаляется при ее движении. Обеспечивает непрерывный процесс очистки и подходит для больших объемов сточных вод
Ступенчатая решетка
Имеет оригинальную конструкцию из подвижных и неподвижных планок, образующих «ступени». При работе подвижные планки перемещают мусор вверх по ступеням, автоматически очищая решетку. Такие решетки эффективно задерживают даже мелкие включения и не требуют сложного обслуживания
Вертикальная решетка
Устанавливается вертикально в канале и имеет систему автоматической очистки. Применяется там, где нет возможности размещения наклонных конструкций. Задержанные отходы удаляются с помощью грабельных механизмов или шнековых транспортеров
Барабанное сито тонкой очистки
Используется для более тонкой фильтрации сточных вод, задерживая мелкие частицы (до 1–3 мм). Сито выполнено в виде вращающегося барабана с мелкой перфорацией или сеткой и применяется на заключительных этапах механической очистки или для повторного использования воды
Главная цель применения таких решеток — защита последующих элементов водоочистной линии от засорений и повреждений. Решетки предотвращают попадание в систему крупных частиц, которые могут привести к износу насосов, нарушению работы механической и биологической ступеней очистки, а также снижению эффективности работы всего комплекса
Обычно решетки представляют собой металлическое устройство с рядом параллельных стержней или фильтров с различной шириной зазоров
В зависимости от условий применения конструкция может быть:
Шнековые — с автоматическим удалением собранного мусора с помощью винтового механизма
Грабельные типа — с механическим или ручным очистителем
Барабанные — вращающиеся сито для постоянной фильтрации потока
Ступенчатые — многоуровневые фильтры для повышения эффективности задержания загрязнений
Поступление стоков: загрязненная вода движется через канал, где установлена решетка
Задержание мусора: твердые включения и крупные частицы задерживаются между стержнями или на поверхности фильтрующего элемента
Удаление отходов: в зависимости от конструкции, используется шнековое удаление, грабельное типа или автоматическое очистное устройство
Сброс очищенной воды: вода без крупных частиц поступает на дальнейшие этапы очистки, включая биологическую обработку и фильтрацию
Производственные процессы включают проектирование, выбор материалов, точную механическую обработку и сборку. Современное производство решеток подразумевает использование коррозионно-стойких сталей и сплавов, а также высокотехнологичных методов сварки и пресс-формования для обеспечения надежности и долговечности изделия
Городские и сельские канализационные системы
Очистные сооружения промышленных и производственных предприятий
Локальные установки на пищевых, химических и металлургических объектах
Очистка воды перед подачей на насосные станции и фильтрационные комплексы
Этап 1. Подготовка канала: проверка размеров, установка направляющих
Этап 2. Монтаж устройства: установка решетки в проектное положение
Этап 3. Подключение очистных элементов: монтаж шнековых, грабельных типа или барабанных механизмов
Этап 4. Проверка работы: тестирование функциональности, включая удаление осадка и сброс мусора
Регулярная очистка фильтрующих поверхностей от скопившегося мусора
Проверка состояния подвижных механизмов и их смазка
Контроль на предмет коррозии и износа элементов
Периодическая замена уплотнений и фильтрующих компонентов
Своевременное техническое обслуживание продлевает срок службы решетки и исключает внеплановые остановки системы
При выборе необходимо учитывать:
Пропускную способность канала и объем стоков
Характер задерживаемых отходов и их размером
Тип конструкции (шнековые, грабельные, барабанные, ступенчатые)
Условия эксплуатации (агрессивность среды, температура, количество твердых включений)
Грамотно подобранная решетка повышает эффективность всей системы очистки и снижает эксплуатационные затраты
Наиболее востребованы нержавеющие стали и композитные материалы, устойчивые к коррозии и химическим воздействиям. Для отдельных деталей применяются высокопрочные пластики и алюминиевые сплавы. Использование таких материалов обеспечивает надежную работу даже при длительном контакте с агрессивными стоками и химически активными веществами

