Построим, запустим очистные сооружения за 4 месяца и дадим гарантию 5 лет на работу всего оборудования
Не нашли что искали? Заполняйте небольшую форму и наши специалисты помогут с подбором оптимального решения
Компания «Геон» — российский инжиниринговый центр, специализирующийся на создании и внедрении комплексных решений в области очистки и транспортировки сточных вод. Мы осуществляем полный цикл работ: от инженерного проектирования и собственного производства оборудования до монтажа и ввода в эксплуатацию очистных систем
Наша ключевая задача — максимально снизить риски и избежать ошибок на всех этапах реализации. Мы полностью берем на себя решение организационных и технических вопросов: подбор эффективного оборудования, сопровождение при получении необходимых согласований, строительство и запуск систем, готовых к стабильной и надежной работе. Главный приоритет — ориентированность на потребности клиента и устранение любых сложностей, которые могут возникнуть в процессе реализации проекта
В каталоге более подробно представлен перечень нашего оборудования, а так же информация о компании
Флотация — это технология удаления взвешенных и гидрофобных веществ из стоков с помощью воздуха
Загрязняющие частицы прилипают к мелким пузырькам воздуха, всплывают и формируют пенную массу. Это позволяет отделить загрязнения без механического фильтра, обеспечивая высокую степень очистки даже при наличии нефтепродуктов и масляных эмульсий
Технологии различаются по способам насыщения воздуха и использования реагентов:
Напорная флотация — насыщение мелкими пузырьками воздуха под давлением, применяется для сложных загрязнений
Пневматическая — воздух вводится атмосферным способом, подходит для малых нагрузок
Механическая (импеллерная) — создаются пузырьки с помощью вращающегося импеллера
Безреагентная — очистка без химии, только воздухом
Реагентная — комбинирует флотацию с коагулянтами и флокулянтами для улучшенного удаления мелких частиц
Напорный флотатор — эффективен при высокой загрязненности, требует реагентов и сатуратор
Импеллерный (механический) — надежный, экономичный, но с крупными пузырьками
Безреагентный — экологичен, прост в обслуживании, ограничен по типам загрязнений
Реагентный флотатор — устранение самых мелких и сложных загрязнений
Двухступенчатый проточный — сочетает два разных флотационных этапа для высокой степени очистки
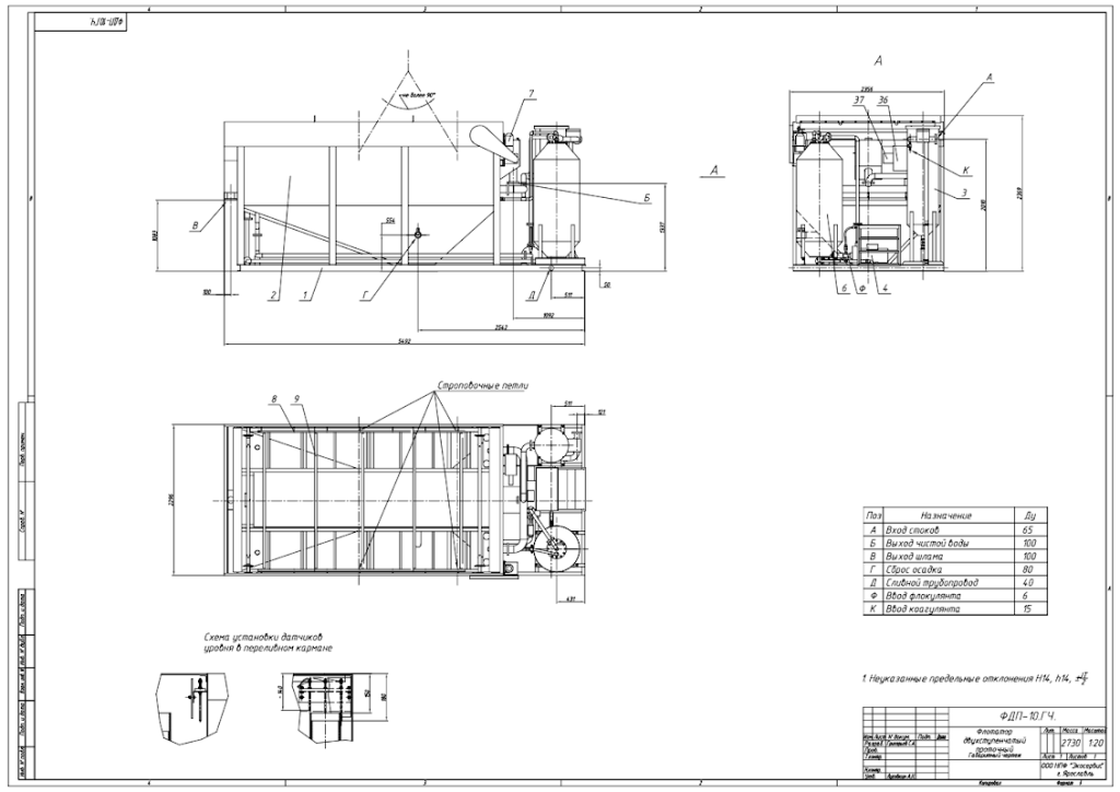
Двухступенчатый проточный флотатор
это уникальная схема очистных систем, в которой сточные воды проходят через две последовательно расположенные камеры. В первой ступени осуществляется грубая пресс-флотация, удаление крупных и плавающих загрязнений. Во второй — тонкая флотация с высокой степенью очищения, удаляющая мелкие взвешенные частицы и нефтепродукты. Такой подход позволяет достигнуть значительно более высокой эффективности, чем одиночные флотаторы, при минимальных габаритах и без применения дополнительных реагентов
Двухступенчатые проточные флотаторы обладают рядом значимых преимуществ по сравнению с традиционными аналогами. Благодаря двухступенчатой проточной схеме, оборудование обеспечивает более высокую степень очистки, чем стандартные одноступенчатые решения, и отличается повышенной надежностью в работе.
Такая конструкция позволяет гибко регулировать производительность, не требует установки дополнительных накопительных емкостей и может монтироваться на любом удобном расстоянии и уровне относительно источника сточных вод. При этом, даже при залповых сбросах, исключается проскок неочищенной жидкости.
Первая ступень флотатора включает узел процеживания и зону отстаивания, что в большинстве случаев делает предварительную очистку ненужной и значительно упрощает общую схему очистных сооружений. Отсутствие фильтрующих элементов снижает потребность в обслуживании и делает систему максимально простой и устойчивой в эксплуатации.
Дополнительным плюсом является компактность данного вида флотатора. Это особенно ценно для предприятий с ограниченными производственными площадями, небольшими объемами сброса или невозможностью установки заглубленного оборудования
Многоуровневая система очистки
Первая проточная камера — сатуратор для грубой флотации
Вторая камера — микро-аэрация, удаление мелких частиц и масел
Скиммеры — для пены и осадка
Насосы и распределители воздуха — обеспечивают давление и равномерное насыщение
Панель управления — автоматизация контроля давления, уровня и времени задержки
Подача сточных вод — поток поступает в первую камеру
Грубая флотация — выделение крупных частиц и нефтепродуктов
Промежуточный переход — очищенная вода поступает во вторую ступень без остановки
Тонкая флотация — удаление мелких взвесей и маслянистых веществ
Удаление пены — скиммер собирает флотошлам
Сброс очищенной воды — направляется на фильтрацию или сброс
Широкий спектр использования
1. Подготовка площадки — бетонный фундамент с анкерными болтами
2. Установка обеих камер — точная выверка и гидроизоляция
3. Монтаж скиммеров и линий воздуха
4. Подключение трубопроводов — вход сточных вод и выход очищенной
5. Пусконаладочные работы — настройка давления, скоростей потока и автоматики
Для бесперебойной работы следует проводить следующие мероприятия:
Регулярную чистку обеих камер от осадка
Проверку и промывку скиммеров
Очистку воздухораспределителей и насосов
Технический контроль датчиков и автоматики
Тестирование выходов, контроль качества воды
Анализ включает:
Объем стоков и динамику их изменения
Тип загрязнений — концентрация жиров, масел, нефтепродуктов
Требуемую степень очистки (нормы сброса)
Место установки и возможности интеграции
Бюджет и потребность в реагентах
Две очистных ступени вместо одной
Уменьшенная потребность в химии и доочистке
Более высокая степень удаления взвешенных частиц
Более стабильная работа при непредсказуемых нагрузках
Унификация замен большинства моделей одним модульным узлом
1. Анализ исходных данных
Перед началом проектирования собирается вся необходимая информация: состав и характеристики сточных вод (тип и концентрация загрязнений, наличие нефтепродуктов, взвешенных веществ, органики, ПАВ и пр.), объем сброса стоков (средний и пиковый суточный расход), температурные условия, pH и физико-химические свойства среды. А также определяются особенности производственной системы, куда встраивается флотатор (наличие других этапов очистки: отстойников, фильтров и т. д.)
2. Выбор схемы очистки
На основе анализа подбирается схема водоочистки, в которой двухступенчатый проточный флотатор становится центральным элементом. Важно определить:
необходимость предварительной обработки (в большинстве случаев она не нужна), наличие и размещение блоков до- и после очистки (ультрафиолет, сорбция и т.п.), способ насыщения воздуха (например, напорный или барботажный), нужно ли использовать реагенты или система работает безреагентно
3. Гидравлический и объемный расчет
Выполняется расчет размеров камер (первая и вторая ступень), времени пребывания сточных вод в каждой зоне, скорости потока, скорости всплытия частиц, производительности по воздуху, расчет флотационной эффективности
4. Определение параметров оборудования
Подбираются технические характеристики: объем и площадь флотационной камеры, параметры системы подачи пузырьков воздуха, мощность насосов и компрессоров, материал корпуса и всех рабочих элементов (коррозионностойкие стали, стеклопластик, полипропилен — в зависимости от типа стоков и условий эксплуатации), наличие системы автоматизации, датчиков уровня, давления и прочего
5. 3D-моделирование и проектная документация
Создается подробная трехмерная модель установки, разрабатываются: чертежи, схемы подключения к существующей инфраструктуре, график монтажа и пусконаладки, план компоновки оборудования на площадке, расчет фундаментов (если требуется), документация для согласований (если объект подлежит контролю со стороны природоохранных и санитарных органов)

