Построим, запустим очистные сооружения за 4 месяца и дадим гарантию 5 лет на работу всего оборудования
Наша компания специализируется на производстве резервуаров и емкостей горизонтального типа, которые представляют собой ключевой элемент системы пожарной безопасности объектов
Эти противопожарные резервуары предназначены для хранения и обеспечения требуемого запаса воды на случай тушения пожара. Резервуар горизонтальный цилиндрической формы с ребрами жесткости — это надежная и долговечная конструкция, срок службы которой исчисляется десятилетиями. Резервуары могут быть как наземными, так и подземными, что позволяет оптимально интегрировать их в любую инфраструктуру. Изготовление пожарных емкостей ведется с учетом требований заказчика и норм, действующих на всей территории России
Подземные резервуары и накопительные емкости являются неотъемлемой частью инженерных систем: станции биологической очистки сточных вод, канализационные насосные станции, ливневые очистные сооружения, станции водяного пожаротушения. Емкости служат для хранения дизельного топлива, бензина и других технических веществ, а также для сбора, накопления, отстаивания и усреднения сточных вод разного происхождения — дождевых, талых, бытовых и производственных
Пожарные резервуары горизонтальные — это универсальные емкости для воды, которые используются не только для создания противопожарного запаса воды, но и в смежных системах. Они отлично подходят для:
· Основного или резервного хранения воды для нужд пожарной безопасности промышленных, коммерческих и складских объектов.
· Интеграции с насосными станциями. Резервуар пожарный часто является основой для комплектации пожарными насосными станциями и насосным оборудованием.
· Хозяйственно-бытовых нужд. Емкости могут использоваться для запаса технической или питьевой воды (при соответствующем исполнении).
· Сопутствующих систем. Наше производство стальных резервуаров также обслуживает нужды очистки сточных вод — мы изготавливаем емкости для очистных сооружений и канализационных насосных станций (КНС)
· Прочность:
Конструкция с ребрами жесткости обеспечивает устойчивость к давлению грунта (для подземных резервуаров) и долговечность
· Материал:
Изготовление из углеродистой или нержавеющей стали в зависимости от требований к воде и окружающей среды
· Вариативность:
Возможно производство как единичных емкостей, так и систем из нескольких цистерн, соединенных между собой
Наши специалисты помогут с расчетом цены и подберут оптимальное решение для вашего проекта: емкости объемом от 5 до 200 м3
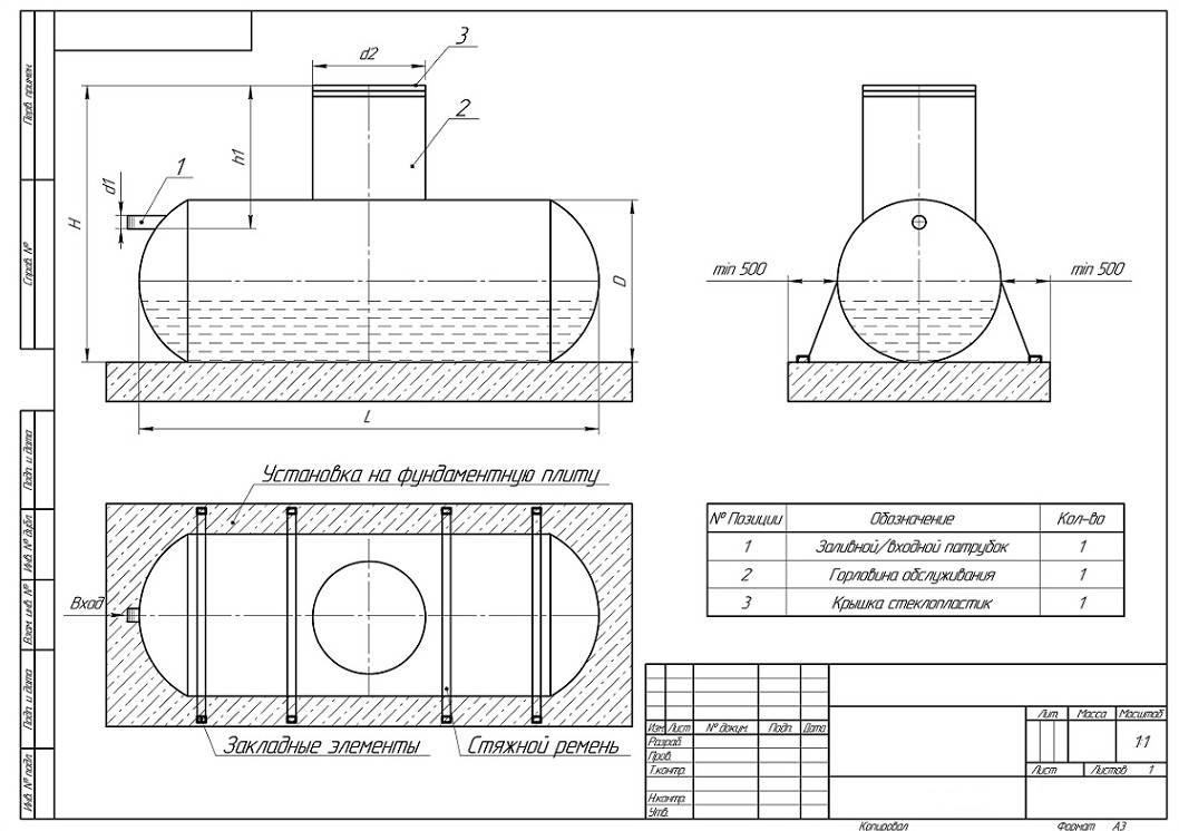
корпус резервуара (сварной или цельнолитой, в зависимости от материала)
технологические патрубки (вход, выход, перелив, вентиляция, ревизия)
люк для обслуживания
лестница или площадка для доступа (при наземной установке)
датчики уровня воды (опционально)
теплоизоляция (при необходимости эксплуатации в зимний период)
Дополнительно резервуар может комплектоваться насосной станцией, блоком автоматического управления и системой подогрева
Проектирование резервуара выполняется с учетом норм пожарной безопасности (в т.ч. СП 8.13130.2009, СП 10.13130.2009 и др.), а также специфики объекта.
В расчет берутся:
— требуемый объем воды для пожаротушения
— климатические условия (температура, влажность, уровень промерзания)
— способ установки (подземный или наземный)
— тип почвы и нагрузки
— доступ к обслуживанию
Разработка проекта включает расчеты на прочность, устойчивость, герметичность и удобство подключения к пожарной системе
В зависимости от условий эксплуатации и требований заказчика, горизонтальные пожарные резервуары могут изготавливаться из различных материалов:
Сталь — прочный и долговечный материал. Стальные резервуары могут быть оцинкованными или с антикоррозионным покрытием. Подходят для наружной установки
Стеклопластик — коррозионностойкий и легкий материал, не подвержен воздействию агрессивной среды, имеет длительный срок службы. Подходит для подземной и надземной установки
ПНД (полиэтилен низкого давления) — современный полимерный материал, устойчив к коррозии и химическим воздействиям, легко монтируется. Идеален для подземного монтажа
Выбор материала зависит от бюджета, условий эксплуатации и требований к сроку службы
Горизонтальные или вертикальные резервуары: что выбрать?
Резервуары для хранения воды противопожарного назначения могут быть выполнены в двух основных вариантах: горизонтальные и вертикальные. Выбор типа зависит от задач и условий на площадке
· Горизонтальные резервуары (РГСП) часто предпочтительнее для подземного монтажа или при ограниченной высоте. Они проще в транспортировке и монтаже Подземный пожарный резервуар горизонтального типа экономит полезное пространство на поверхности
· Вертикальные резервуары обычно требуют меньше площади, но больше высоты. Вертикальные пожарные емкости чаще выбирают для наземных установок
Наша компания производит как горизонтальные, так и вертикальные пожарные резервуары и поможет подобрать оптимальное решение по габаритным размерам и объему
Визуальный осмотр корпуса на предмет повреждений и коррозии
Проверка герметичности соединений и крышек
Очистка внутренней поверхности от накипи и осадков
Проверка работы запорной арматуры и датчиков
Обновление антикоррозионного покрытия (для металлических резервуаров)
Проверка теплоизоляции и системы обогрева (если применимо)
Рекомендуется проводить профилактическое обслуживание не реже одного раза в год, а также после каждого использования системы пожаротушения
Главное отличие — в конструкции корпуса и защите. Подземные пожарные резервуары имеют усиленное антикоррозийное покрытие и рассчитаны на нагрузку от грунта. Наземные резервуары устанавливаются на подготовленное основание и часто оборудуются лестницами и площадками для обслуживания. Выбор зависит от условий вашего объекта.
Объем противопожарного запаса воды регламентируется нормами пожарной безопасности (СП 8.13130) и зависит от категории здания, его назначения и наличия других источников. Наши специалисты помогут рассчитать требуемый объем и предложат типовые модели от 5 до 150 м3 или спроектируют резервуар по индивидуальным габаритным размерам.
Основной материал — конструкционная сталь с антикоррозийным покрытием (грунтовка, эмаль). Для агрессивных сред или хранения питьевой воды возможно изготовление резервуаров из нержавеющей стали или с использованием специальных внутренних покрытий.
Да, все производство пожарных резервуаров осуществляется в соответствии с требованиями технических регламентов. На резервуары мы предоставляем сертификат соответствия, а также полный пакет технической документации (паспорт, схемы монтажа).
Да, наша компания предлагает комплексные решения: проектирование, производство, доставку по Московской области и всей России, монтаж резервуара, установку необходимого насосного оборудования и ввод в эксплуатацию.

