Не нашли что искали? Заполняйте небольшую форму и наши специалисты помогут с выбором оптимального решения
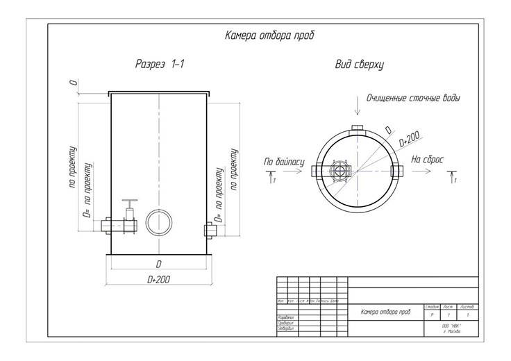
Колодец отбора проб
это специализированный контрольный колодец, предназначенный для забора проб сточных вод с целью контроля их качества. Такие колодцы являются важнейшей частью канализационной системы, особенно в рамках систем промышленной, ливневой или бытовой очистки
Основная задача колодца отбора проб – предоставление доступа к сточным водам для проведения их анализа
Это позволяет:
— Контролировать состав сточных вод на соответствие экологическим нормам
— Выявлять возможные загрязнения на ранних стадиях
— Обеспечивать безопасную работу предприятий, связанных с водопользованием
Колодец устанавливается на магистральных трубопроводах, ведущих к очистным сооружениям или системам водоотведения, и используется как в промышленных, так и в бытовых системах
Заполняйте небольшую форму и наши специалисты подберут оптимальное решение!
Каждый колодец для отбора проб комплектуется:
Корпусом (из прочных химически стойких материалов)
Входными и выходными патрубками под различные диаметры канализационных труб
Камерой для отбора проб, удобной для ручного и автоматического забора воды
Герметичным люком
При необходимости — отсеками под насосные системы очистки или датчики мониторинга
Такие колодцы позволяют:
Контролировать эффективность очистки сточных вод
Выполнять отбор проб перед сбросом в централизованную систему
Поддерживать соблюдение норм ПДК по сбросу
Избежать штрафов и санкций от надзорных органов
ПНД (полиэтилен низкого давления) — один из самых востребованных материалов. Обладает высокой химической стойкостью, не подвержен коррозии, выдерживает перепады температур. Лёгкий, что упрощает монтаж и транспортировку
Стеклопластик — применяется в случаях, где необходима повышенная прочность при минимальном весе. Идеальны для промышленных объектов с высокой нагрузкой на контрольный колодец
ГК «ГЕОН» предлагает высококачественные инженерные решения, адаптированные под различные условия эксплуатации. Наша продукция отличается надёжностью, долговечностью и простотой в использовании.
Мы предоставляем:
— Индивидуальный подбор оборудования для вашего объекта
— Сертифицированные изделия, соответствующие всем экологическим нормам
— Профессиональную поддержку на всех этапах – от проектирования до монтажа
