Конструкция для подземного хранения жидкостей с усиленной защитой от коррозии и внешних нагрузок
Не нашли что искали? Заполняйте форму и наши специалисты помогут с подбором оптимального решения!
Компания ГЕОН — это современная российская инжиниринговая компания полного цикла, специализирующаяся на системах очистки и перекачки сточных вод. Мы не просто разрабатываем проекты — мы сами проектируем, производим и монтируем очистные сооружения, емкости и насосные станции. В состав нашей структуры входят: проектный отдел, технологическое подразделение, конструкторы, производство, монтажные бригады, пуско-наладочный персонал, а также служба сервиса и контроля качества. Мы предлагаем комплексные инженерные решения — от анализа стоков до запуска готовых очистных систем — чтобы избавить заказчика от возможных рисков и ошибок на каждом этапе
Наша основная задача — снять с клиента все технологические и административные сложности, связанные с реализацией очистных проектов: мы слушаем потребности, подбираем оптимальные решения, согласовываем документацию, строим и запускаем очистные сооружения. Мы стремимся сделать проекты не просто «экологичными», но и экономичными: наша цель — обеспечить баланс между эффективностью очистки и разумной стоимостью, минимизировать эксплуатационные расходы и сократить риски
Многоступенчатая очистка стоков: комбинирование механической, физико-химической и биологической очистки
Модульные блочно-модульные сооружения, собранные на заводе, с возможностью масштабирования под нагрузку клиента
Станции с подземным размещением: подземные КОС и ЛОС, емкости и насосные станции
Высокотехнологичные конструкции фильтров: фильтры из стали и других материалов, устойчивы к агрессивным средам
Проектно-лабораторное моделирование: анализ состава стоков, техзадание, моделирование параметров системы перед реальным строительством
В каталоге более подробно представлен перечень нашего оборудования, а так же информация о компании
Цифры, опыт и сильные стороны
Пройдем вместе все этапы
Мы можем спроектировать и изготовить различные типы металлических стальных емкостей, в зависимости от задач:
По форме
Горизонтальные резервуары: располагаются вдоль земли, часто применяются для хранения жидкости подземно
Вертикальные резервуары: цилиндрические, высокой высоты, используются, если необходим большой объём и компактный след на поверхности
По назначению
Накопительные емкости: для хранения воды, реагентов или других жидкостей
Пожарные резервуары: предназначены для запаса воды, которая используется для тушения
Резервуары хранения: универсальные стальные емкости для длительного хранения технических или промышленных жидкостей
По конструкции
Подземные металлические резервуары: размещаются в котловане, засыпаны грунтом
Наземные металлические резервуары: находятся полностью над поверхностью земли
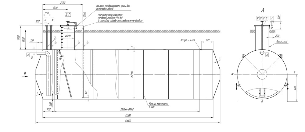
Подземные металлические резервуары
это стальные емкости, которые устанавливаются целиком или частично под землей. Они изготавливаются из листа стали (часто с антикоррозийным покрытием), могут быть вертикальными или горизонтальными, и предназначены для длительного хранения жидкостей или газов. Эти резервуары могут служить частью очистных сооружений, систем перекачки, пожарной инфраструктуры, или использоваться на нефтебазах и АЗС. Они характеризуются высокой прочностью, герметичностью и устойчивостью к внешним воздействиям (давление грунта, температурные колебания). Подземное размещение позволяет экономить полезную площадь на поверхности и повышает безопасность хранения агрессивных или опасных веществ
Почему клиенты выбирают подземные металлические емкости
Типичная поставка и оснащение подземного металлического резервуара может включать:
Стальной корпус из листовой стали
Антикоррозионное покрытие (лакокрасочное, гальваническое или иной тип защиты)
Патрубки: входные, выходные, вентиляционные, аварийные
Люк-горловина или люковая арматура (люк доступа)
Укрепленные днище и ребра жесткости (если проект требует)
Внутренние перегородки (для многосекционных резервуаров)
Датчики уровня жидкости (например, поплавковые, ультразвуковые)
Система заземления (если в резервуаре хранятся горючие или потенциально взрывоопасные жидкости)
Монтажные кронштейны или анкерные элементы (в зависимости от конструкции и грунтов)
Изоляция (по проекту, если необходим термический режим)
Комплект документации: чертежи, сертификаты, инструкции по монтажу и эксплуатации
Прием жидкости или газа: металлический резервуар получает содержимое через входной патрубок
Накопление: жидкость или газ хранится внутри корпуса. Если резервуар многокамерный, среда может перераспределяться через внутренние перегородки
Контроль уровня: встроенные датчики фиксируют уровень содержимого, что позволяет отслеживать наполнение и предотвращать переполнение
Вентиляция и безопасность: через вентиляционные патрубки уходит газовая фаза, предотвращается образование избыточного давления. При хранении опасных сред возможно наличие системы сброса или аварийного вывода
Отбор среды: через выходной патрубок или насос (внешний) производится забор жидкости или газа из резервуара
Мониторинг и обслуживание: регулярные проверки целостности, контроль состояния антикоррозионного покрытия, проверка уровней и эксплуатационных параметров
Этап 1. Подготовка площадки
Выемка котлована по проектным размерам
Устройство дренажной подушки или бетонного основания
Организация системы отвода грунтовых вод, если необходимо
Этап 2. Установка резервуара
Опускание стального резервуара в котлован с помощью подъемной техники
Выравнивание, закрепление на основании
Этап 3. Подключение коммуникаций
Присоединение патрубков: входных, выходных, вентиляционных, аварийных
Монтаж датчиков уровня, заземления и элементов безопасности
Этап 4. Засыпка и защита
Засыпка котлована грунтом или другим материалом по проекту, с учетом нагрузок на стенки
Устройство защитных слоев (возможно песок, геотекстиль, дренаж)
Этап 5. Пусконаладка
Заполнение резервуара, проверка герметичности
Проверка работы датчиков уровня.Контроль антикоррозионной защиты
Испытание системы вентиляции и безопасности
Этап 6. Прием в эксплуатацию
Оформление документации, акты приемки
Передача инструкции заказчику и обучение персонала по эксплуатации
Наиболее распространенными решениями являются конструкции из углеродистой стали с многослойным антикоррозионным покрытием, обеспечивающие высокую механическую прочность и устойчивость к давлению грунта. Для агрессивных сред применяются резервуары из нержавеющей стали марок AISI 316 и 321, демонстрирующие стойкость к химическим воздействиям
Альтернативой металлическим конструкциям служат резервуары из стеклопластика, отличающиеся полной водонепроницаемостью и устойчивостью к электрохимической коррозии. В условиях воздействия высокоагрессивных сред оптимальным выбором становятся полипропиленовые емкости, сохраняющие целостность даже при длительном контакте с кислотами и щелочами. Каждый материал обладает определенным сроком службы: стальные конструкции служат 15-25 лет, тогда как современные полимерные решения сохраняют эксплуатационные характеристики до 30-50 лет. Критически важным аспектом является комплексная защита, включающая катодную систему, дренажные решения и регулярный мониторинг технического состояния, обеспечивающие безопасную эксплуатацию на протяжении всего жизненного цикла оборудования
Резервуары из стали поставляются на объект с использованием крупногабаритного транспорта. Возможна доставка по всей России и странам СНГ, поскольку наша компания обладает собственными логистическими связями. Поставка может производиться в собранном виде либо по частям, если габариты резервуара превышают допустимые для перевозки. Перед отгрузкой резервуар проходит проверку качества, маркировку и упаковку, чтобы исключить повреждения при транспортировке
Материалы
Тип стали (углеродистая, нержавеющая)
Толщина листов: чем толще стенки, тем выше цена
Покрытия: антикоррозионная защита, внутренние покрытия
Объем резервуара
Больший объем требует больше материала, более мощную конструкцию и усиление
Конфигурация
Вертикальные или горизонтальные; наличие внутренних перегородок (многокамерные)
Оснащение
Датчики уровня, системы вентиляции, заземления, люки
Внутренние и внешние технологические элементы
Монтажные работы
Стоимость земляных работ, засыпки, анкерования
Режим доставки и логистика
Условия эксплуатации
Климатические требования, защита от коррозии, требования к безопасности (взрывоопасные среды)
Сложность монтажа
Требуется ли тяжелая техника, подъемники, специальные монтажные бригады
Сертификация и документация
Проектная документация, испытания, сертификация, документация приемки
Наши специалисты поомгут с расчетом и подберу оптимальное решение для вашего проекта

